Lilla Bommen 8
Ort
Göteborg
Område
Lilla Bommen
Lokaltyp
Kontor, Restaurang, Butik
Totalyta
250-500 m²
Arbetsplatser
30-40 st
Våning
1-8
Hyresindikation
3 000 kr/m²/år
Tillträde
Efter överenskommelse
Forma
Anpassad design
Hållbara och cirkulära material
Ergonomiska lösningar
Kontakta mig om du behöver hjälp
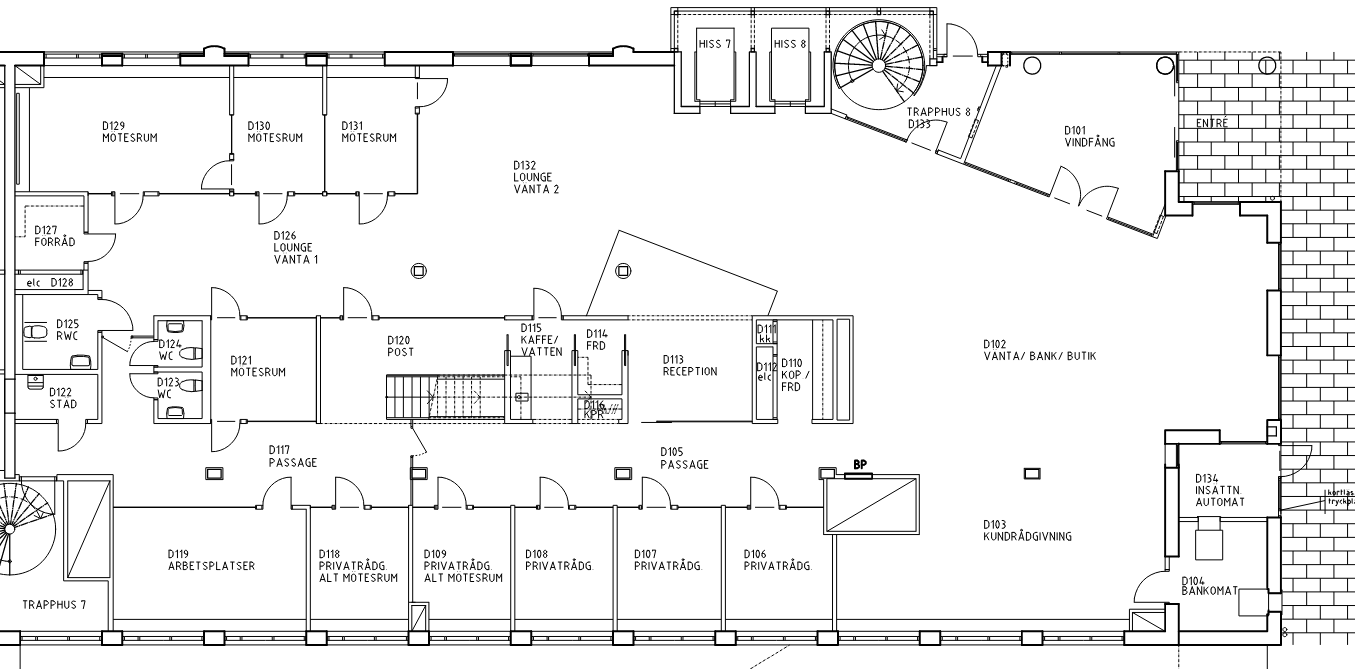
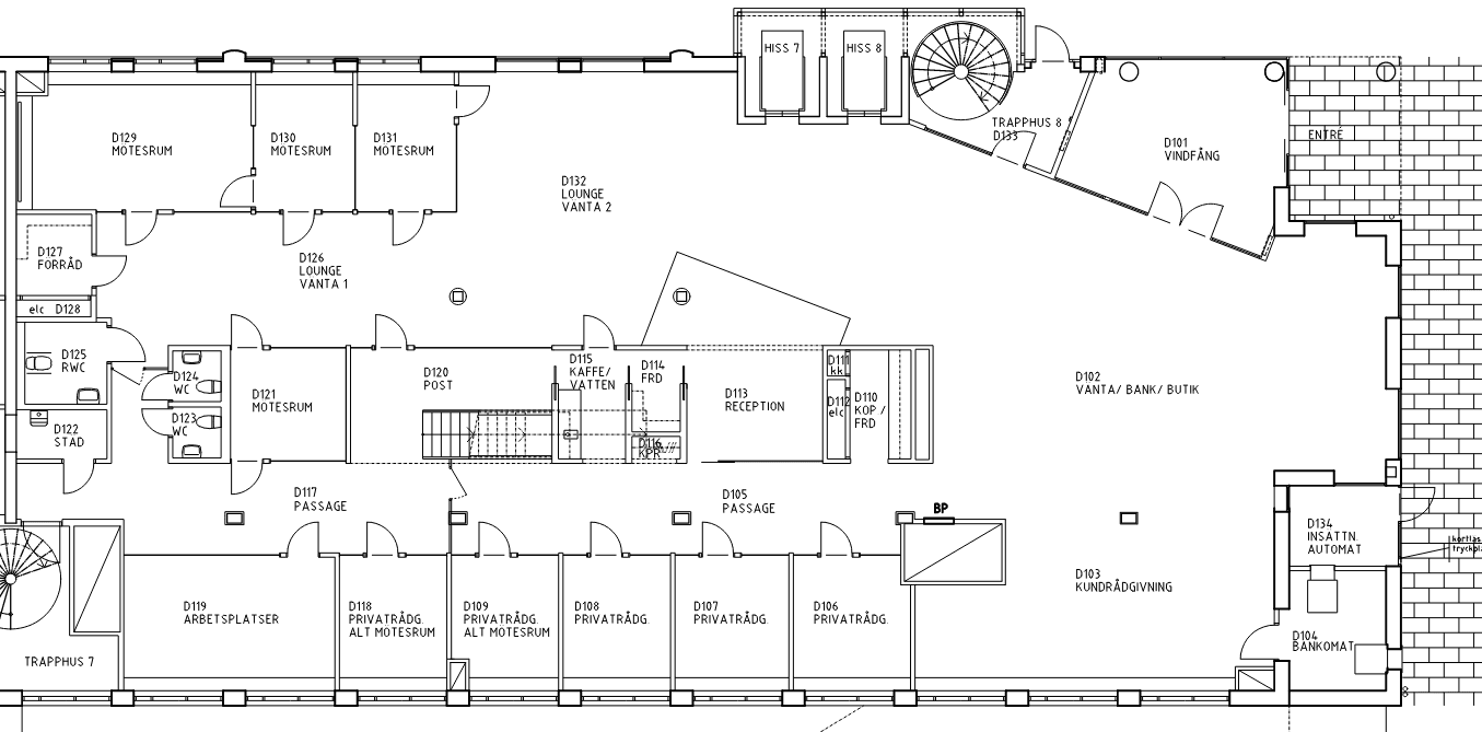
Kontor, butik eller showroom om 250-500 kvm i Lilla Bommen
Nu finns möjlighet att etablera ett kontor, butik eller showroom om 250-500 kvm på entréplan i Lilla Bommen 8. Lokalen passar verksamheter som vill ha god exponering och erbjuder god flexibilitet i ett centralt och vattennära läge i Göteborg.
Fastigheten helrenoverades för några år sedan, vilket innebär en modern standard med uppdaterade ytskikt och materialval. Här finns goda förutsättningar att skapa ett kontor som fungerar väl för den egna verksamheten, samtidigt som befintliga kvaliteter tas tillvara. I utvecklingen av huset ligger stort fokus på återbruk och hållbarhet, vilket innebär att lokalen anpassas med minsta möjliga miljöpåverkan. Med mindre justeringar, som färgsättning och utvalda anpassningar, går det ändå att sätta en tydlig egen prägel.
Områdesbeskrivning
Lilla Bommen är ett av Göteborgs mest välkända kontorslägen, där city möter vattnet. Här sitter ni i en levande del av staden med närhet till både etablerade verksamheter och nya stadsutvecklingsprojekt. Området präglas av sitt kajnära läge, öppna vyer och den tydliga identiteten som vuxit fram kring Läppstiftet och Göteborgs hamninlopp.
Här finns en vardag med både puls och pauser. Närområdet bjuder på restauranger, kajstråk, hotell och service, samtidigt som stadskärnan ligger bara en kort promenad bort. Det gör Lilla Bommen till ett läge som fungerar lika bra för arbetsdagen som för möten, luncher och besök.
Kommunikation
Lilla Bommen 8 ligger cirka 500 meter från Göteborgs Centralstation, vilket ger mycket goda kommunikationer för både medarbetare och besökare. Härifrån är det enkelt att resa vidare med tåg, buss, spårvagn och flygbuss.
Det centrala läget gör det smidigt att pendla från hela Göteborgsregionen. Närheten till Hisingsbron ger också god tillgänglighet till flera delar av staden, både för den som reser kollektivt och för den som tar bilen.
Närservice
I området finns ett brett utbud av service med restauranger, caféer, hotell, gym och shopping inom bekvämt gångavstånd. I närliggande Aria finns dessutom tillgång till tillfälliga arbetsplatser och konferensmöjligheter. Där kommer det även att finnas restaurang och servicebutik.
Fakta
BREEAM (BRE Environmental Assessment Method) är ett etablerat europeiskt miljöcertifieringssystem med fem nivåer: Pass, Good, Very Good, Excellent och Outstanding. Systemet bedömer byggnaders hållbarhet ur ett helhetsperspektiv, bland annat utifrån energi, inomhusmiljö, material, vatten och hur byggnaden förvaltas. Certifieringen innebär att byggnadens miljöprestanda har granskats och verifierats av en oberoende tredje part.
För hyresgäster innebär BREEAM Very Good en byggnad med god energiprestanda och väl genomtänkt inomhusmiljö. God luftkvalitet, dagsljus och hög termisk komfort bidrar till en trivsam och hälsosam arbetsmiljö. Certifieringen omfattar även hållbara materialval, effektiv vattenanvändning samt hänsyn till mark och omgivning, vilket sammantaget skapar en byggnad som är långsiktigt hållbar att vistas och verka i.
BREEAM Very Good innebär att byggnaden uppnår minst 55% av den totala poängen i certifieringssystemet.
Lokalen innehåller
Göteborgs Central
5 min
Träning & gym
I området
Konferens & café
Konferens möjligheter i området.
Tillgänglighet & parkering
Garage i huset
