New development
Bulyckevägen 29
Ort
Göteborg
Område
Torslanda
Lokaltyp
Lager/Logistik
Totalyta
8 392 m²
Lastgård
4364 plus sidoytor 1385 kvm
Takhöjd
12 m under balk
Golvbärighet
5000 ton/m²
Våning
1-2
Tillträde
Enligt överenskommelse
Nyproduktion
Denna lokal är nyproducerad
Kontakta mig om du behöver hjälp
Nyroducerad logistiklokal
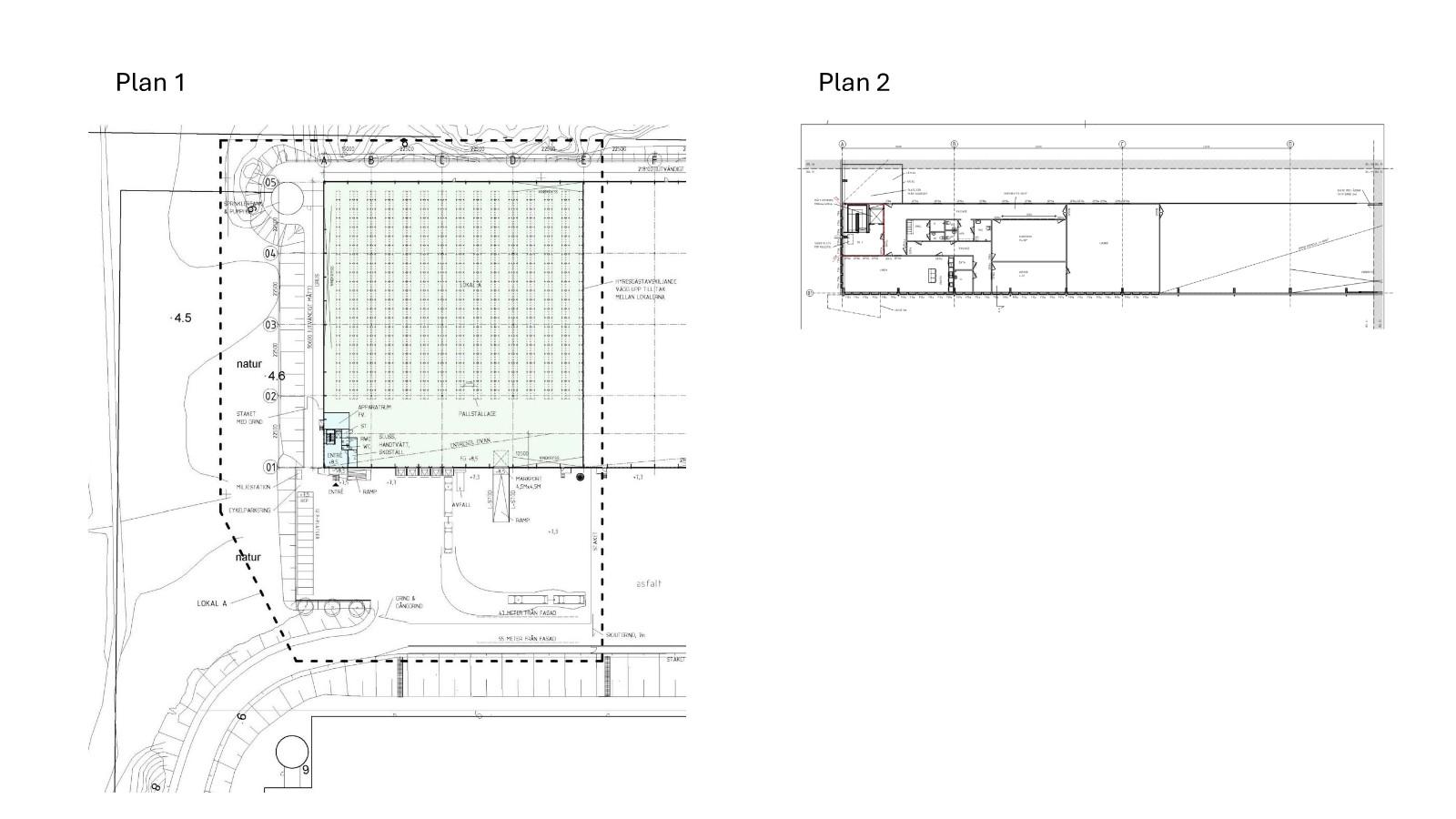
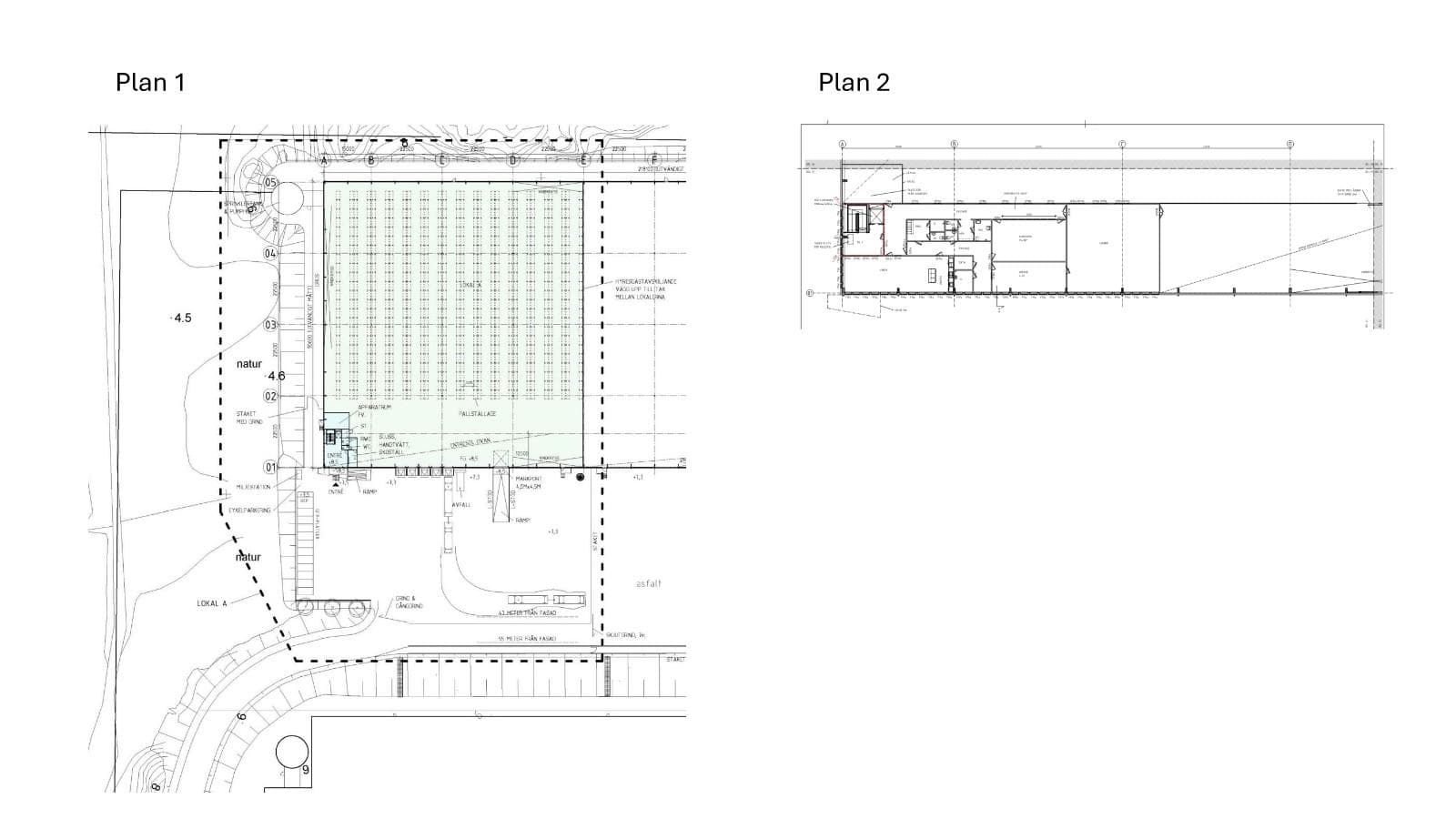
Välkommen till en nyproducerad logistiklokal i Bulycke Logistikpark på Hisingen. Här erbjuds totalt cirka 8 400 kvm moderna ytor, varav cirka 7 400 kvm utgör lager. Lokalen har en generös takhöjd om 11,7 meter och en golvbärighet på 5 ton per kvm, vilket skapar goda förutsättningar för effektiv lagerhantering och logistikflöden.
Till lokalen hör en egen inhägnad rangeryta som underlättar transporter och hantering av gods. Ytorna är flexibla och kan anpassas efter verksamhetens behov, oavsett om det handlar om lager, distribution eller lättare logistikverksamhet
Områdesbeskrivning
Bulycke Logistikpark är en del av Torslandas växande logistikkluster på Hisingen, ett av Skandinaviens viktigaste områden för industri och logistik. Området har utvecklats kraftigt de senaste åren och omfattar idag cirka 70 000 kvm fördelat på tre byggnader.
Närheten till Göteborgs Hamn och den kommande batterifabriken stärker områdets position ytterligare. Här finns goda möjligheter för företag som vill etablera sig i ett expansivt och strategiskt läge i norra Europa.
Kommunikation
Fastigheten har ett mycket bra logistiskt läge med smidig anslutning till väg 155 som knyter samman Torslanda med centrala Göteborg och övriga regionen. Göteborgs Hamn nås på cirka 6 till 10 minuter och centrala Göteborg på cirka 15 minuter.
På sikt kommer även Torslandas nya tvärbana att passera i direkt anslutning till området, vilket ytterligare förbättrar tillgängligheten.
Fakta
BREEAM (BRE Environmental Assessment Method) är ett etablerat europeiskt miljöcertifieringssystem med fem nivåer: Pass, Good, Very Good, Excellent och Outstanding. Systemet bedömer byggnaders hållbarhet ur ett helhetsperspektiv, bland annat utifrån energi, inomhusmiljö, material, vatten och hur byggnaden förvaltas. Certifieringen innebär att byggnadens miljöprestanda har granskats och verifierats av en oberoende tredje part.
För hyresgäster innebär BREEAM Very Good en byggnad med god energiprestanda och väl genomtänkt inomhusmiljö. God luftkvalitet, dagsljus och hög termisk komfort bidrar till en trivsam och hälsosam arbetsmiljö. Certifieringen omfattar även hållbara materialval, effektiv vattenanvändning samt hänsyn till mark och omgivning, vilket sammantaget skapar en byggnad som är långsiktigt hållbar att vistas och verka i.
BREEAM Very Good innebär att byggnaden uppnår minst 55% av den totala poängen i certifieringssystemet.
The unit includes
Göteborgs Hamn
6-10 min
Landvetter Flygplats
20 min
Logistikområde
Bulycke Logistikpark
Lunchutbud
3-5 min
