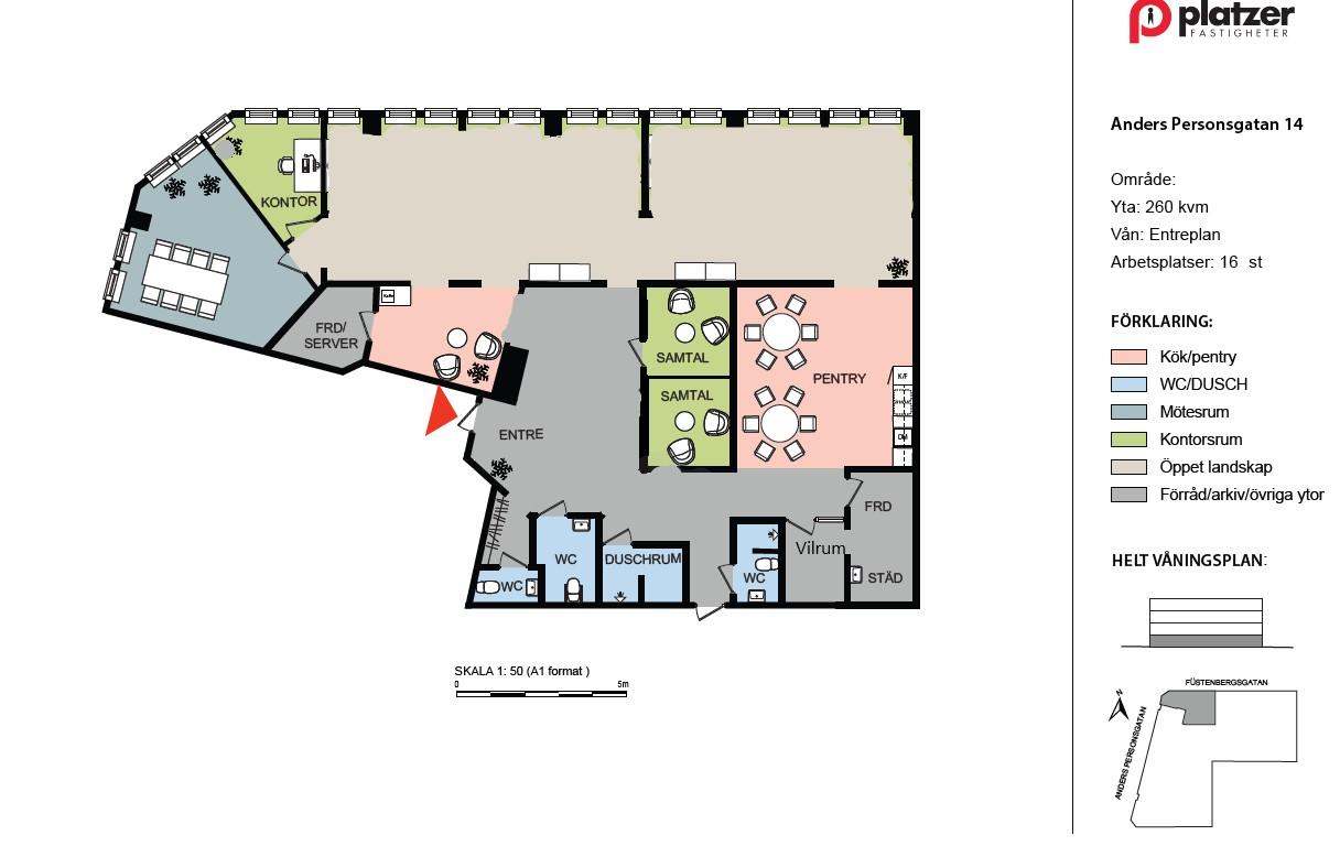
Anders Personsgatan 14
Ort
Göteborg
Område
Gårda
Lokaltyp
Kontor
Totalyta
260 m²
Arbetsplatser
15 st
Våning
1
Tillträde
Enligt Överenskommelse
Forma
Anpassad design
Hållbara och cirkulära material
Ergonomiska lösningar
Kontakta mig om du behöver hjälp
Kontorslokal i Markplan med egen entré
Vill du sitta i Gårda med närhet till kommunikationer, leder samt ha en lokal i markplan? Då har du hittat rätt!
Här kan vi erbjuda en lokal i markplan med egen separat ingång direkt från gatan. Den nuvarande planlösningen är blandad och passar perfekt för dig som behöver både privata kontorsrum och en öppen arbetsmiljö. Lokalens utformning och läge gör det också idealiskt som showroom. Det generösa antalet fönster mot gatan inte bara fyller utrymmet med naturligt ljus utan ger dig även ett utmärkt skyltläge.
Områdesbeskrivning
I norra Gårda händer det mycket och i takt med flertalet utvecklingsprojekt knyter sig stadsdelen allt närmare Göteborgs innersta kärna. Flera kontors- och bostadshus har byggts i området vilket bidragit till en modern och livfull kvarterstämning med restauranger, kaféer och butiker.
Det här är en möjlighet att etablera ditt företag i det allt mer populära området Gårda där flera spektakulära byggnader bidrar till områdets attraktionskraft.
Kommunikation
Till Anders Personsgatan är det enkelt att ta sig oavsett om du använder bil, kollektivtrafik eller cykel. Det är bara en kort 15-minuters promenad från Centralstationen. Dessutom erbjuder fastigheten ett garage i två plan samt flera besöksparkeringsplatser i närheten.
Närservice
I fastigheten finns 2st lunchrestauranger, Gårda Lunch & Bistro & salladsbaren Picadeli.
Fakta
BREEAM (BRE Environmental Assessment Method) är ett etablerat europeiskt miljöcertifieringssystem med fem nivåer: Pass, Good, Very Good, Excellent och Outstanding. Systemet bedömer byggnaders hållbarhet ur ett helhetsperspektiv, bland annat utifrån energi, inomhusmiljö, material, vatten och hur byggnaden förvaltas. Certifieringen innebär att byggnadens miljöprestanda har granskats och verifierats av en oberoende tredje part.
För hyresgäster innebär BREEAM Very Good en byggnad med god energiprestanda och väl genomtänkt inomhusmiljö. God luftkvalitet, dagsljus och hög termisk komfort bidrar till en trivsam och hälsosam arbetsmiljö. Certifieringen omfattar även hållbara materialval, effektiv vattenanvändning samt hänsyn till mark och omgivning, vilket sammantaget skapar en byggnad som är långsiktigt hållbar att vistas och verka i.
BREEAM Very Good innebär att byggnaden uppnår minst 55% av den totala poängen i certifieringssystemet.
The unit includes
